

Skyhouse / Platform a+d
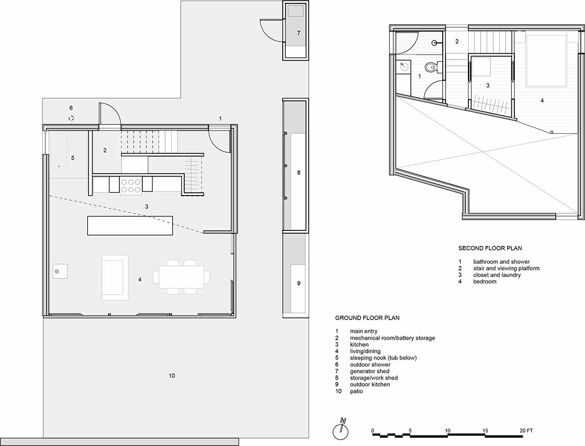
Skyhouse est une modeste cabine conçu et réalisé par l’architecte Jesse Garlick, située dans les contreforts semi-arides du nord-est de l’État de Washington. Au rez de chaussée, de grandes fenêtres plein sud ouvrent sur une colline en pente avec des vues imprenables sur les contreforts des Cascades. Le bâtiment est défini par 2 matériaux simples: La structure primaire est fait de panneaux de bois lamellé-croisé solides qui sont exposés tout au long pour créer un intérieur chaleureux et durable. La tôle d’acier plate et inachevé définit l’extérieur, et se patine dans un ocre rouge.
Articles suivants


The Sea In Me / Marzena Skubatz

CML House / Ricardo Torrejon & Arturo Chadwick

Autumn / Casalta Xavier

Oliver Cabell / Tom Jueris

Casa Encallada / WHALE!

Abandoned And Forgotten / Jan Stel

Just My Pics / Mikhail Vyrtsev

Linogravures / David Vanadia
Article sponsorisé

Naust V / Koreo Architects & Kolab Architects

Travel / Withhearts

Green Box / Act Romegialli

Illustration / James Gilleard

Secret 7 / Maxime Francout

Patagonia Dreaming I / Andy Lee

Base Bench / Maria Bruun

Collectif / Bison Bleu

May Grove / Jackson Clements Burrows Architects

Linogravures / David Vanadia
Article sponsorisé

The Realities Imagined / Quentin Shih

Art Warehouse in Boeotia / A31
Fin des articles
Plus aucune page à charger