
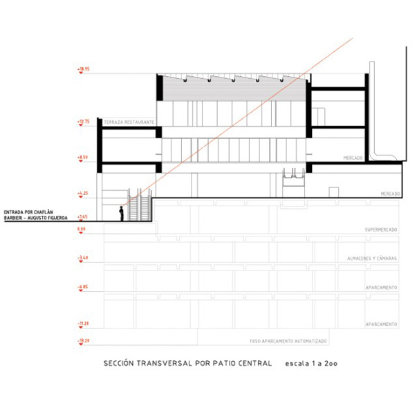
Le nouveau marché de San Anton / QVE architecte
Le cabinet d’architecture QVE signe le nouveau marché de San Anton, un quartier populaire de la ville de Madrid.
Photographie : Jorge Crooke
http://www.qve-arquitectos.com
Articles suivants
Design graphique / Wang Zhi Hong
ECOdesign 2011
Flux Chair / Douwe Jacobs & Tom Schouten
Nowhere / Michel Rajkovic
Vodafone / Barbosa Guimarães Arquitectos
Denver Art Museum / Daniel Libeskind
Sequences / Sveinn Davðísson
Linogravures / David Vanadia
Article sponsorisé
Tcho / Edenspiekermann
Spun chair / Thomas Heatherwick
Bendito Machine I / Zumbakamera
Habitus Stool / Sebastian Jansson
Research Studios Shop
Parasite Office / Za Bor
Panel / Yi-Cong Lu
Tilt Shift / Ed McGowan
Jesse Hazelip
Linogravures / David Vanadia
Article sponsorisé
Mxw / Jack Maxwell
The Bento Bestiary / Ben Newman
Fin des articles
Plus aucune page à charger