

House in Nada / Fujiwaramuro Architects
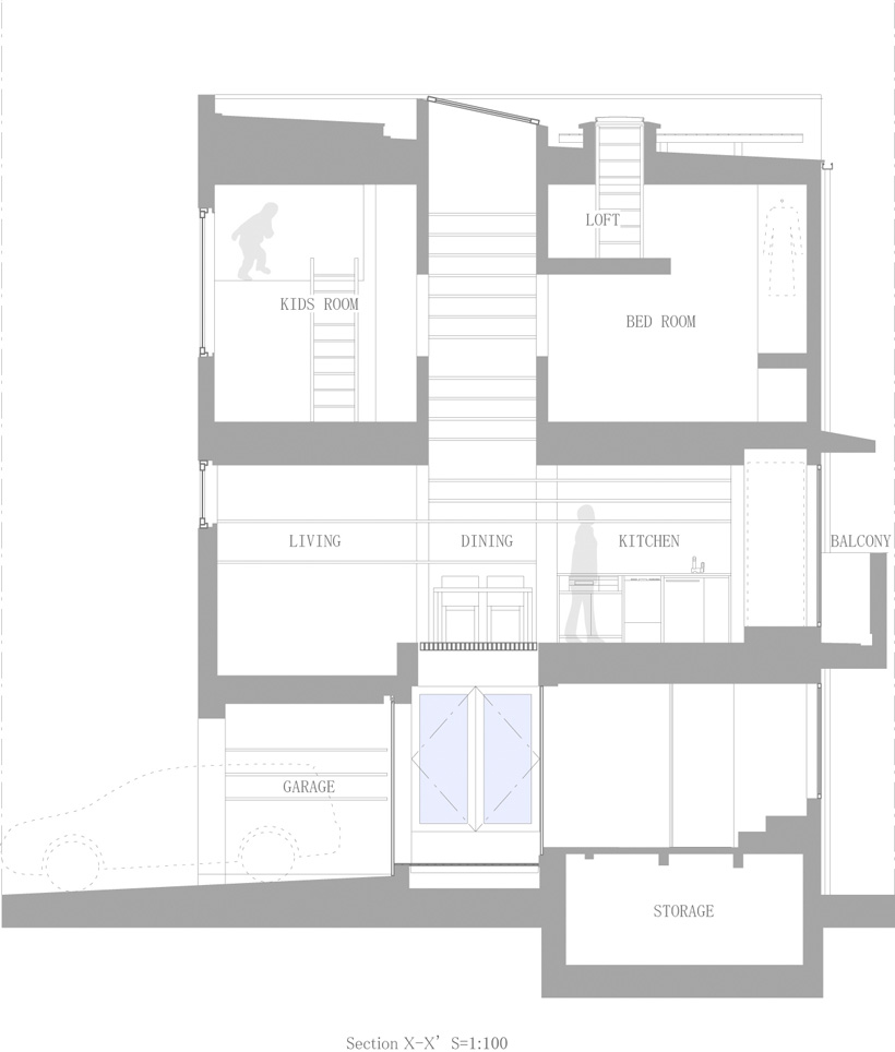
Fujiwaramuro Architects a conçu une maison étroite, en centre-ville résidentielle mesurant seulement 36.95 m² dans Nada, Kobe, au Japon. Cette résidence incroyable démontre que vous n’avez pas besoin d’une grande quantité d’espace pour un confort douillet. La maison comprend deux chambres, une cuisine, un garage, un salon, une salle à manger, et une salle de stockage supplémentaire. Tous sont répartis sur trois étages avec une ouverture au milieu.
Photographies: Toshiyuki Yano
Articles suivants


Word Wide World / Anton Burmistrov

Factory Life / Julie D’Aubioul

Rethink / Maddison Graphic

The Japan Series / Andrea Gefeller

Haus Am Moo / Bernardo Bader Architects

Pointer Here / Maximovich Design

Nest / Studio 1984

Linogravures / David Vanadia
Article sponsorisé

Worknest / Wiktoria Lenart

15/115 – The Book / Mash Creative

Hialeah Table / Iacoli & McAllister

Die Grosse / Morphoria Design Collective

The Glass House / Ar Design Studio

Snöbär / Yonder Magnetik

Lifestyle / Elizabeth Weinberg

TextielMuseum & TextielLab / Raw Color

Listen To Your Hands / Studio Lee Sanghyeok

Linogravures / David Vanadia
Article sponsorisé

Whitney Museum of American Art / Experimental Jetset

Pakta / El Equipo Creativo
Fin des articles
Plus aucune page à charger