

Haus Hohlen / Jochen Specht
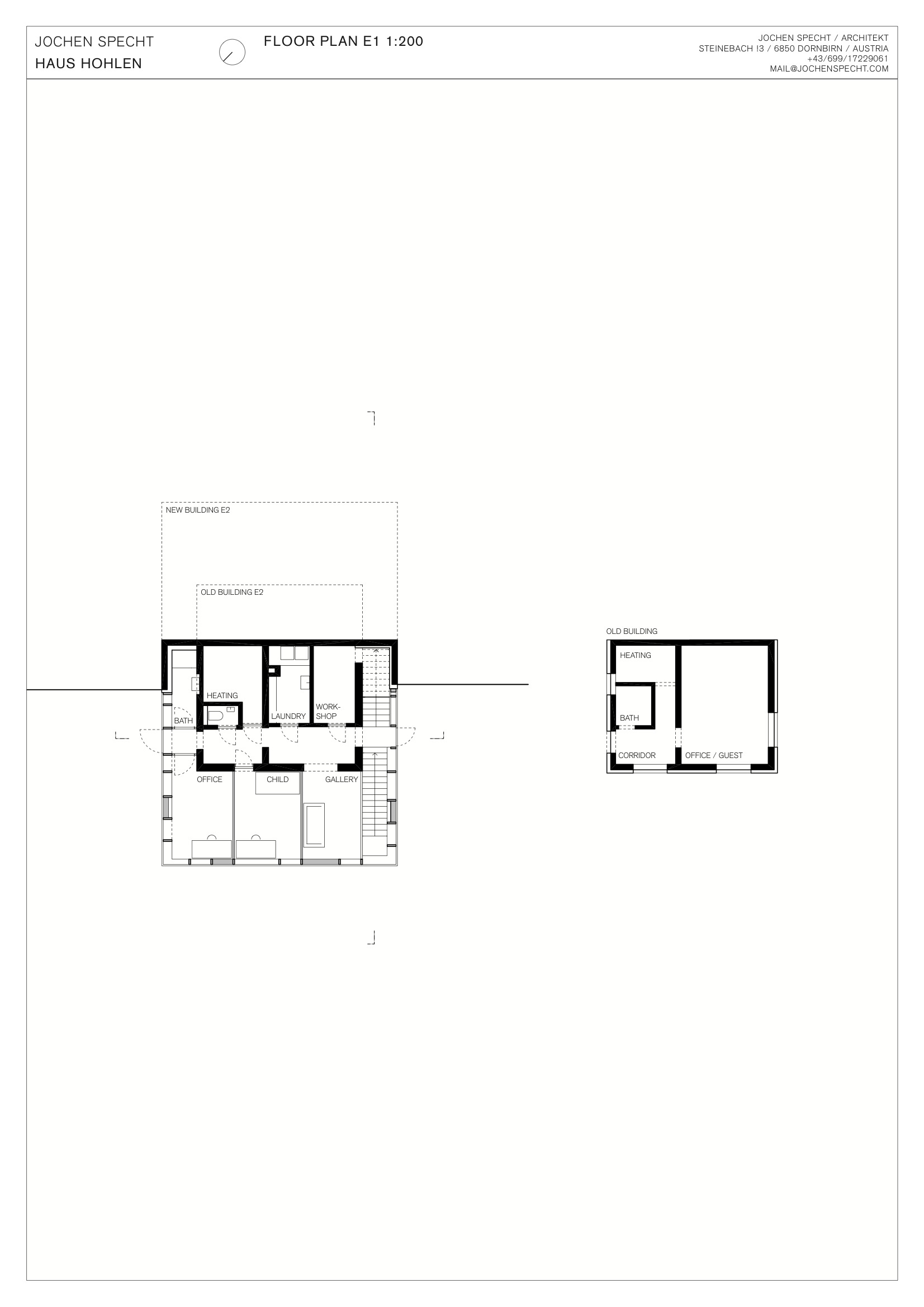
Haus Hohlen est une maison restauré par le cabinet d’architecture Jochen Specht, construite à l’origine en 1961.
Photographies: Adolf Bereuter
Articles suivants


Haus Hohlen / Jochen Specht

Photography Studio / FT Architects

Lounge chair Q1 / ODESD2

Vortex / 1024 Architecture

Botiga Tara’s / Baas

Night Annimals / Mikko Lagerstedt

Artist’s Studio / Josep Camps – Olga Felip

Linogravures / David Vanadia
Article sponsorisé

Cabins / Cruschiform

Oxymoron Desk / Anna Lotova

The Witcher 3 – Steelbooks / StudioKxx

Beef & Liberty / Spinoff

Playhouse / Anna & Eugeni Bach

Through The Glass 1 / Marta Bevacqua

Angel Stanich / Jon Juarez

Beijing / João Canziani

FCDEP 2014 / Atelier Tout Va Bien

Linogravures / David Vanadia
Article sponsorisé

Karakoy Loft / Ofist

Le Mistral / JP Architects
Fin des articles
Plus aucune page à charger