

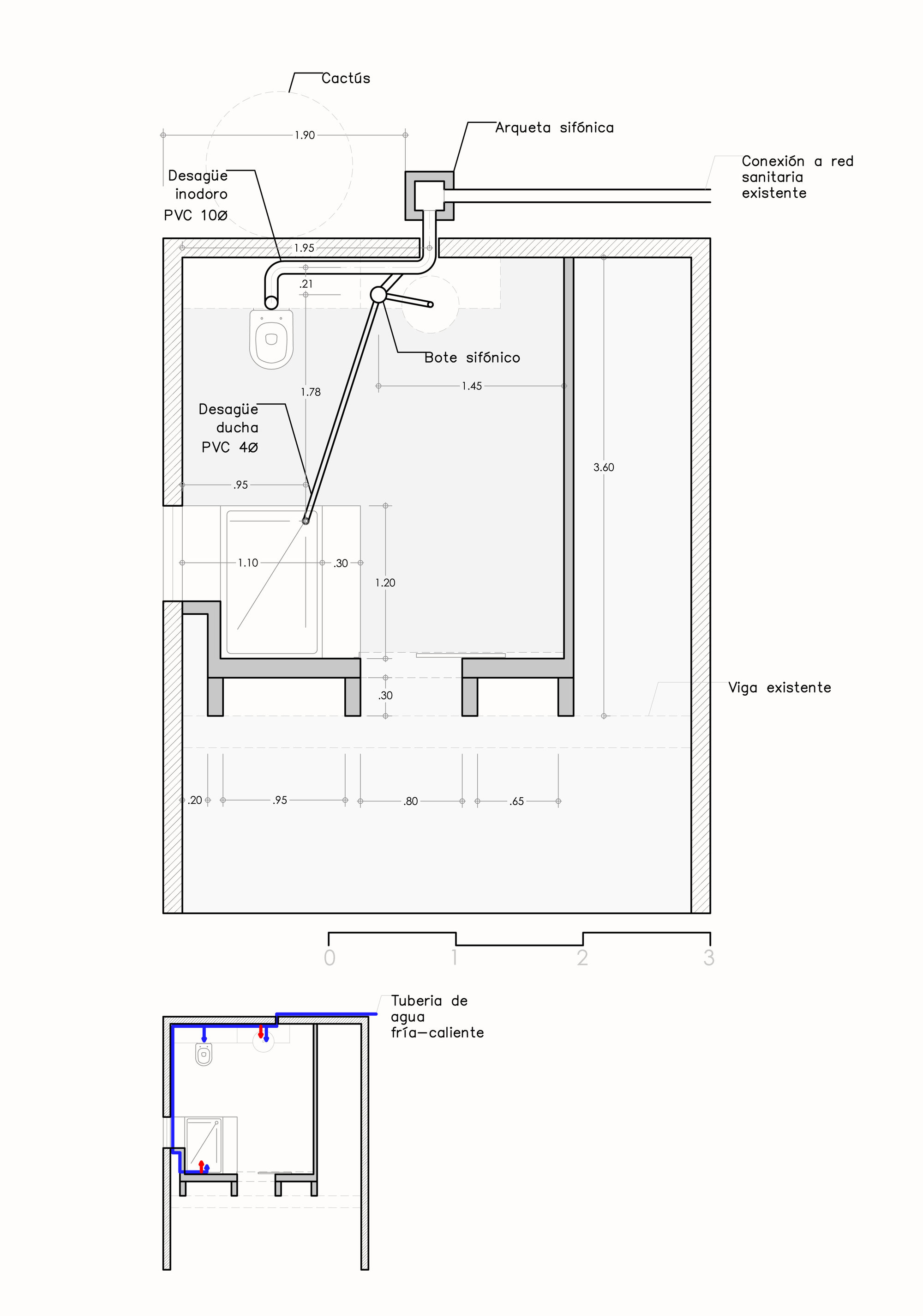
Dressing Room & Bath Room for a Garden / Clara Nubiola
Clara Nubiola est une designer graphique, titulaire d’un master en anthropologie social et urbaine, d’étude supérieur en architecture. Sur l’idée de parent proche, elle a rénové une vielle grange qui server de cellier pour stocker des amandes et des noisettes. L’idée était de créer un lieu entre la maison et l’étang tout proche, permettant de se changer, et se laver après avoir passer un moment à l’étang.
Photographies: Adrià Goula
Articles suivants


The Village on Paper Island / NORM Architects

Dressing Room & Bath Room for a Garden / Clara Nubiola

Nihon TypeFace / Malwin Béla Hürkey

Provença Apartment / NUG

Book – Entdeck deinen Mut / Inka Vigh

Chez Carl / Jean De Lessard

Fold / CZYK

Linogravures / David Vanadia
Article sponsorisé

Tourism Canada / Jared Chambers

Northwest Harbor / Bates Masi Architects

Design S / BVD

Posters / Jaemin Lee

Tsukiji Room H / Yuichi Yoshida associates

Vino Veritas Oslo / Masquespacio

Chrysalis / Gabrielle de la Chapelle

Lounge chair Q1 / ODESD2

NY Light On / Franck Bohbot

Linogravures / David Vanadia
Article sponsorisé

P.A.W. Elite / Cosmin Podar

Photography Studio / FT Architects
Fin des articles
Plus aucune page à charger