
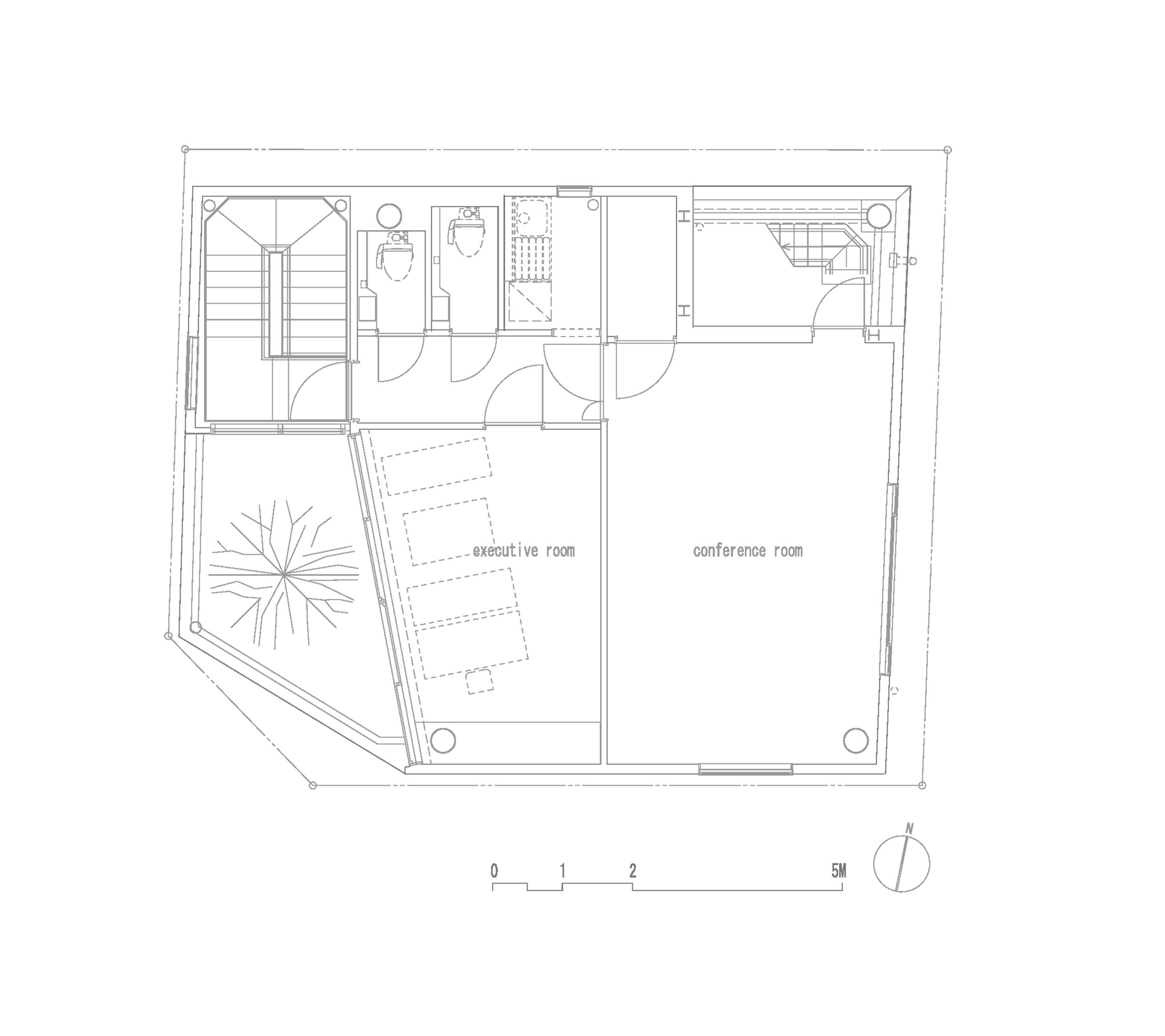
Company Building in Kanagawa / HMAA
Company Building in Kanagawa est une entreprise d’étude de matériaux de construction locaux. Le studio d’architecture HMAA, basé au Japon, conçoit le plan du bâtiment de façon à articuler les étages et les pièces au tour d’un jardin protégé du soleil par un écran métallique perforé. Au premier étage est aménagé l’entrepôt de stockage de l’inventaire, le deuxième étage est libéré pour offrir un maximum d’espace pour les affaires de 16 personnes et le troisième étage bénéficie d’une pièce luxueuse et une salle de conférence.
L’écran métallique perforée anime les murs à chaque étage et filtre la lumière. Un arbre donne vie à cette espace qui est dedans et dehors à la fois.
Photographe: Nobuki Taoaka
Articles suivants
Roadtrip Spain / André Josselin
Plae Bistro / David E. Jackson
Hannam-Dong HANDS Corporation / The System Lab
Victor Vasarely / Werklig
Fosnavag Konserthus / Heydays
Courtyard of Israel Museum/ Ifat Finkelman + Deborah Warschawski
Josie Chair / Mathery Studio
Linogravures / David Vanadia
Article sponsorisé
Fade / Sara Andreasson
Casa SG / Tuttiarchitetti
Issma / Science Agency
Casa CM / Paolo Carlesso
Kult / Slava Balbek
Distant / Jacob Howard
Izabelin House / Reform
Letter R / Dan Tobin Smith
Act-Art / Neo Neo
Linogravures / David Vanadia
Article sponsorisé
Galt / Studio Beau
Sulgrave Road Apartments / Teatum+Teatum
Fin des articles
Plus aucune page à charger